
產品分類
更新時間:2026-03-03
瀏覽次數:11風途地裂縫監測一體機:高精度傳感器實時預警,守護地質災害安全防線【FT-LFZ1】地裂縫監測一體機憑借高精度監測數據,幫助用戶及時察覺潛在風險,迅速采取應對措施,降低損失,多方位保障工程和人員的安全,是當之無愧的多領域安全“精密衛士"。

一、產品簡介
本產品廣泛應用于地質災害、巖土工程、建筑工程、交通、水利、市政等多個監測領域,特別適用于地表裂縫、卸荷裂隙、房屋或結構裂縫等相對位移的精確監測。
在地質災害監測中,能夠實時捕捉地表裂縫的微小變化,為滑坡、崩塌等災害預警提供關鍵數據;在巖土工程中,可有效監測卸荷裂隙的發展趨勢,確保工程安全;
在建筑工程領域,能夠精準檢測房屋或結構裂縫的位移情況,為建筑物的健康診斷和維護提供科學依據;
在交通、水利和市政工程中,同樣能夠發揮重要作用,確?;A設施的長期穩定運行。
通過高精度的監測數據,幫助用戶及時采取應對措施,降低風險,保障工程和人員安全。
二、技術參數
| 量程 | 0-1000mm |
| 精度 | ±0.02%F.S |
| 響應時間 | 1s |
| 外殼材質 | ABS |
| 供電電壓 | 12-24VDC(0.4W@12V) |
| 通訊方式 | modbus-485 |
| 太陽能板功率 | 8W |
| 太陽能板標準工作電壓 | DC5V |
| 內置鋰電池容量 | 5000mAh |
| 支架材質 | 不銹鋼 |
| 采集器 | 帶3年流量 |
| 數據傳輸 | 標配每10分鐘傳輸一次,支持定制 |
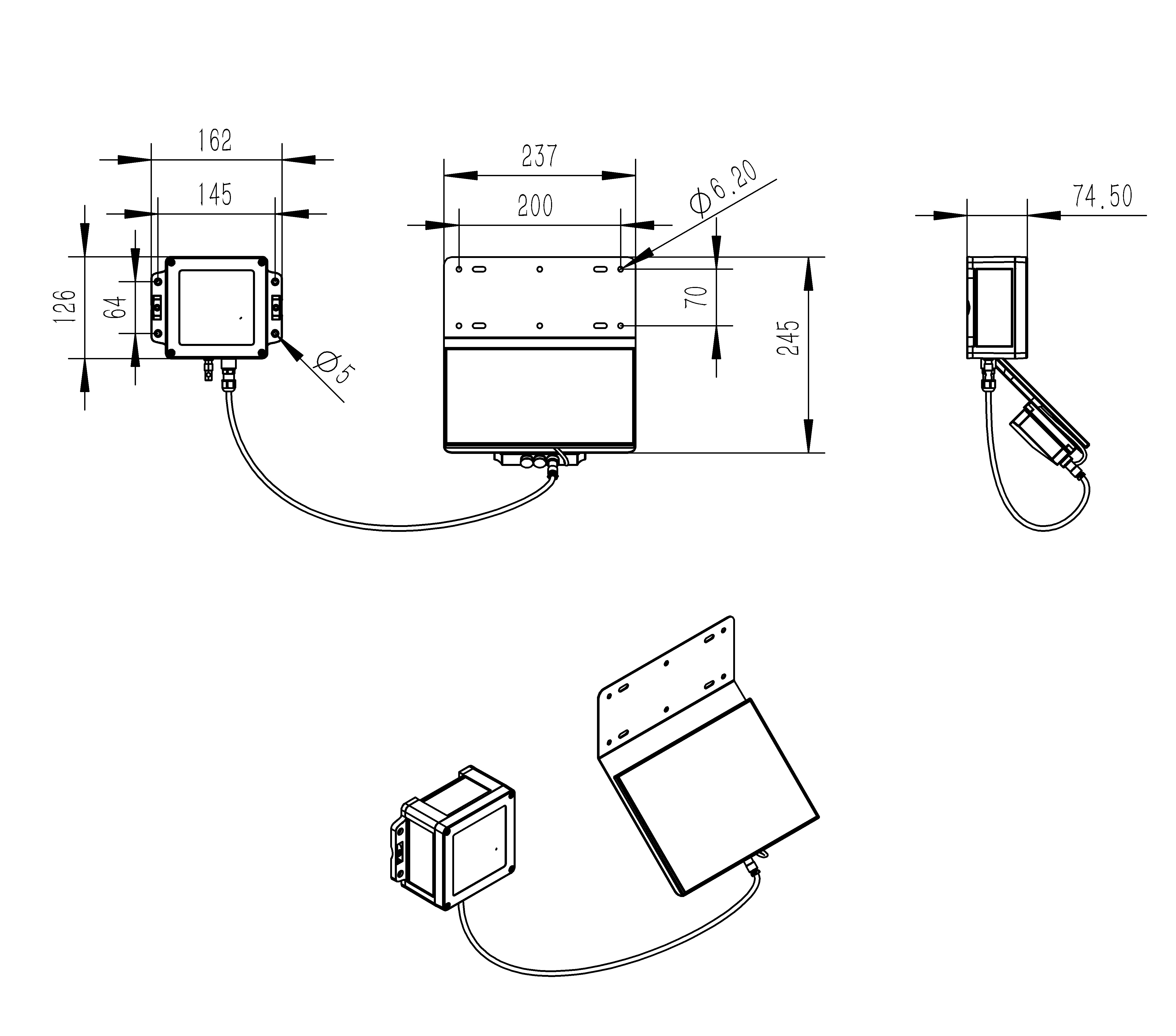
三、產品尺寸圖

關于我們
公司簡介榮譽資質資料下載產品展示
FT-SL1大壩滲流監測分析系統 FT-CS80+水深水溫探測儀 FT-CS50+多功能超聲波測深儀 FT-SXJ1水下搜救機器人 FT-SL1水利滲流量監測設備服務與支持
技術文章新聞中心聯系我們
聯系方式在線留言版權所有 © 2026 山東風途物聯網科技有限公司 備案號:魯ICP備19014883號-23
技術支持:制藥網 管理登陸 sitemap.xml